
Laadukas loma-asunto Levilla White tarjoaa sinulle unelmiesi majoituksen Levin keskustan läheisyydessä
Levilla White on juuri remontoitu lomahuoneisto Levillä
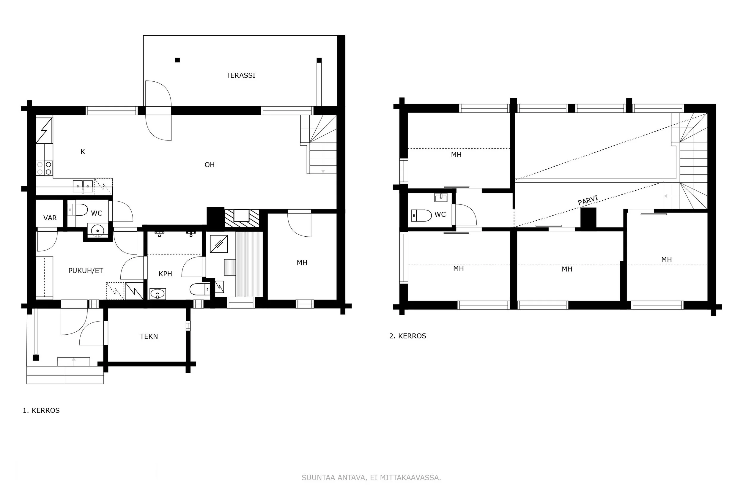
Laadukas lomahuoneisto arvostetulla Kätkän alueella Levillä. Hiljattain remontoidun huoneiston tilat sijaitsevat kahdessa tasossa. Huoneiston alakerrassa on hyvin varusteltu keittiö, jossa integroidut AEG- kodinkoneet; induktioliesi, erillisuuni höyrytoiminnolla, astianpesukone ja mikro, lisäksi 2-korinen airfryer. Ruokailutilassa on kaunis 8 hengen tamminen ruokapöytä ja olohuoneessa on mukavat sohvat, 55″ TV, Apple TV sekä tunnelmaa ja lisälämpöä tuova kivitakka. Kahden hengen makuuhuoneesta löydät sohvasängyn (160×200), 43″ TV:n, lautapelejä ja PS4 pelikonsolin kahdella ohjaimella. Lisäksi alakerran tiloihin kuuluu eteinen, WC ja kylpyhuone, jossa on kaksi sadesuihkua, toinen WC ja tilava sähkösauna.
Yläkerrassa on kolmas WC sekä neljä makuuhuonetta, joissa on jokaisessa kaksi Bellus Bliss jenkkisänkyä laadukkailla Unico Comfort patjoilla. Työpöytä ja tuoli yhdessä yläkerran makuuhuoneista. Finlaysonin laadukkaat luomupuuvillaiset vuodevaatteet ja pyyhkeet.
Loppusiivous, vuodevaatteet pedattuna, pyyhkeet, polttopuut sekä kaksi hissilippua sisältyvät vuokrahintaan. Pihalla on parkkipaikka kolmelle autolle. Sähköauton Type2-latausasema on vieraiden käytössä lisämaksua vastaan 20 €/viikko.
Huoneisto sijaitsee loistavalla paikalla Levin keskustan läheisyydessä hiihtolatujen ja kesäisin maastopyörä- ja kävelyreittien äärellä. Levin monipuolisiin palveluihin ja hiihtohisseille on matkaa vain 1km kävellen ja 2km autoillen. Kittilän lentokenttä 16km.
“Emme tingi laadusta, viihtyvyydestä tai mukavuudesta”
Tarjoamme laatua ja mukavuuksia lomaasi
Huoneiston tilat ja varustelumme ovat laadukkaita sekä viimeisen päälle harkittuja, jotta voimme mahdollistaa lomasi viihtyvyyden.
Huoneiston kuvaus:
Alakerta: Eteinen, olohuone, keittiö, makuuhuone (2 hengen sohvasänky 160x200 cm), sauna sähkökiukaalla/ kylpyhuone kahdella suihkulla/wc, erillinen wc.
Yläkerta: Neljä erillistä tilavaa makuuhuonetta, jossa jokaisessa kaksi yksittäissänkyä (80x200 cm.) ja erillinen wc. Makuuhuoneissa lipastot ja naulakot. Sängyissä on tilavat vuodevaatelaatikot esimerkiksi tyhjille laukuille ja kasseille. Laatikot avautuvat helposti nostamalla.
Varustelu: 2 x TV (olohuoneessa 55” televisio ja Apple TV), nopea wfi-yhteys (63 Mbps), etätyöpiste, takka, pyykinpesukone, kuivausrumpu, kuivauskaappi, 8-hengen ruokapöytä, astianpesukone, jääkaappi pakastinlokerolla, induktioliesi, erillisuuni höyrytoiminnolla, mikro, leivänpaahdin, kahvinkeitin, vedenkeitin, 2-korinen airfryer, 10 hengen astiasto ja ruokailuvälineet. Keittiö on hyvin varusteltu ruuan laittoon ja veitset ovat terävät!
Lisäksi mökistä löytyy paljon lautapelejä, pokerisalkku, sekä PS4 kahdella ohjaimella.
Parkkipaikka kolmelle autolle. Mökistä löytyy myös sähköauton Type2- latausasema 10 kWh latausteholla, joka on käytössä erillisellä maksulla 20 €/ viikko.
EI lemmikkejä.
Hinnat
27.4.2024- 30.11.2024 yökohtainen hinnoittelu
30.11.2024- 26.4.2025 viikkohinnoittelu, vaihtopäivä lauantai
Sähköauton latausaseman käyttö 20 €/vuokraus
Mökistä löytyy kaksi lasten matkasänkyä ja yksi syöttötuoli, jotka käytettävissä ilman lisämaksua.
Viikkohinnat
30.11.2024 - 21.12.2024: 1900 €/ viikko
Joulu (21.12.2024 - 28.12.2024): 3900 €/viikko
Uusivuosi (28.12.2024 - 4.1.2025): 3900 €/viikko
4.1.2025 - 8.2.2025: 1900 €/ viikko
8.2.2025 - 15.2.2025: 2300 €/ viikko
15.2.2025 - 26.4.2025: 2700 €/ viikko
Hinnat sisältävät loppusiivouksen, vuodevaatteet ja pyyhkeet sekä polttopuut. Talvikaudella vuokrahintaan sisältyy 2 kpl hissilippuja (lippujen arvo 455 €).
Yökohtainen hinnoittelu
27.4- 4.5.2024 185 €/yö
4.5.-31.8.2024 100 €/yö
1.- 30.9.2024 140 €/yö
1.- 31.10.2024 100 €/yö
1- 30.11.2024 185 €/yö
Hintaan lisätään 250 € loppusiivous, vuodevaatteet ja pyyhkeet sekä polttopuut. Per majoituskerta. Talvikaudella vuokrahintaan sisältyy 2 kpl hissilippuja (lippujen arvo 455 €).
Hintatietoja voi myös tiedustella lyhyemmälle tai pidemmälle jaksoille varaustilanteen mukaan.
Tiedustelut ja varaukset: info@levillawhite.fi tai +358 400 179 799
Levilla White on keskeisellä sijainnilla Levin keskustan kupeessa
Välimatkat:
Levin keskustaan kävellen 1 km ja autolla 2 km.
Eturinteelle kävellen 1,3 km ja autolla 2,3 km.
Levimarkettiin kävellen 1,3 km ja autolla 2,3 km.
Hiihtobussipysäkille kävellen 1,1 km.
Hiihtoladulle 100 metriä.
Pyörä- ja vaellusreitille 100 metriä
Kelkkareitille 800 metriä.
Golfkentälle matkaa autolla 6 km.
Coworking -tila etätöihin kävellen 1,3km ja autolla 2,4km.
Kittilän lentokenttä 16 km